0

Horizonschool Zuiderlicht

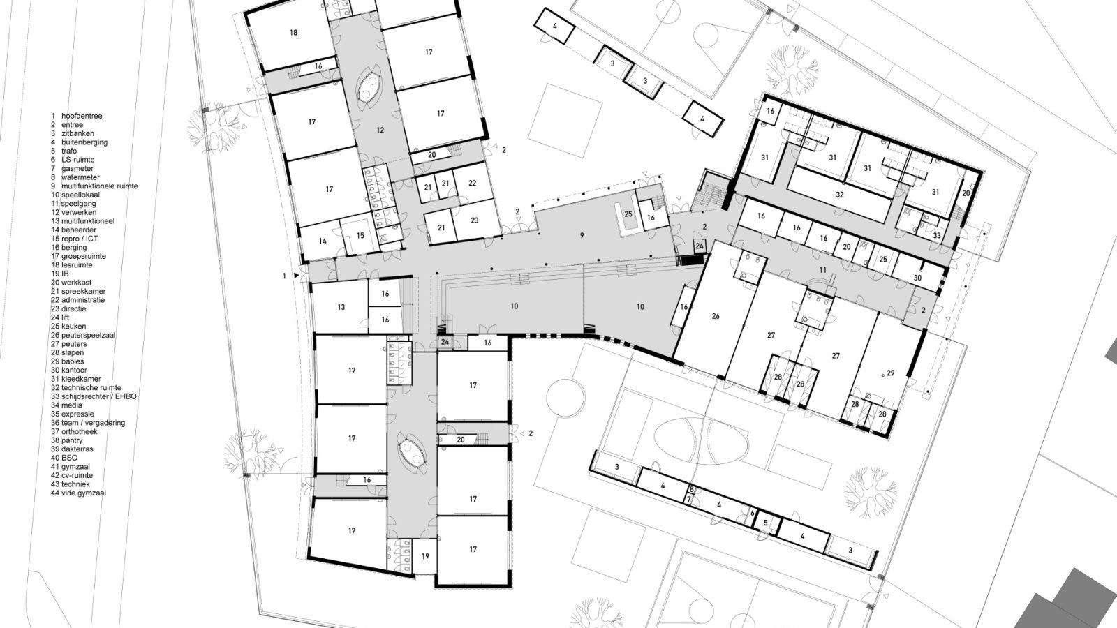
De Horizonschool is een combinatiegebouw (kinderdagverblijf, peuterspeelzaal, basisschool, BSO-unit en een sportzaal) dat als basisvoorziening in de nieuwe wijk Piekenhoef is gerealiseerd. Dit gebouw wordt het ontmoetingspunt voor de ouders, de kinderen en de nieuwe bewoners. Daartoe zijn er in het gebouw extra ruimtes voorzien zoals vergaderruimtes, een creativiteitsruimte en een ontmoetingsruimte. De Horizonschool werkt op basis van een continu ontwikkelingstraject: kinderen worden vanaf dat ze binnenkomen in kinderdagverblijf of peuterspeelzaal begeleid. Het beheer wordt uitgevoerd door de Gemeente Oss die het gebouw verhuurt aan de partners.
Adres
Plaats
Knolgroenveld 1
Berghem, gemeente Oss